Trong bức tranh tổng thể của đại đô thị biển Vinhomes Cần Giờ quy mô 2.870ha, dòng sản phẩm biệt thự đơn lập nổi lên như một tuyên ngôn về vị thế và là đỉnh cao của nghệ thuật sống. Đây là dòng sản phẩm cao cấp bậc nhất, được chủ đầu tư Vinhomes quy hoạch tại những vị trí kim cương thuộc các phân khu biểu tượng như Vịnh Tiên, Vịnh Ngọc, Mũi Danh Vọng và Đảo Mặt Trời. Mỗi căn biệt thự được kiến tạo như một ốc đảo riêng tư giữa quần thể sinh thái biển trác tuyệt, bao quanh bởi những hồ nước mặn trong xanh, công viên cây xanh mát và một hệ thống tiện ích khép kín chuẩn quốc tế. Với số lượng hữu hạn, pháp lý minh bạch và tọa lạc trên quỹ đất ven biển duy nhất còn lại của TP.HCM, biệt thự đơn lập Vinhomes Cần Giờ không chỉ mang giá trị sống tinh tế mà còn là một tài sản tích lũy bền vững, truyền đời cho thế hệ tương lai.
Tổng Quan Thông Tin Biệt Thự Đơn Lập Tại Vinhomes Cần Giờ Green Paradise
Sản phẩm biệt thự đơn lập được phân bổ tại các phân khu đắc địa nhất của dự án, mỗi nơi mang một sắc thái riêng nhưng đều chung một tiêu chuẩn đẳng cấp:
-
Tại Phân khu Vịnh Tiên:
-
Số lượng dự kiến: khoảng 800 căn.
-
Vị trí: Nằm trong tiểu khu biệt thự đảo hoàn toàn biệt lập, sở hữu lợi thế tiếp giáp trực tiếp với Biển hồ nước mặn trung tâm.
-
Diện tích đất (dự kiến): Dao động từ 200m² đến 250m².
-
Pháp lý: Sở hữu lâu dài hoặc 50 năm tùy theo quy định.
-
-
Tại Phân khu Vịnh Ngọc:
-
Số lượng dự kiến: khoảng 700 căn.
-
Vị trí: Tọa lạc tại tiểu khu biệt thự đảo riêng tư, tiếp giáp Biển hồ nước mặn và một số căn có vị trí đặc biệt ven biển.
-
Diện tích đất (dự kiến): Khoảng 200m² đến 250m².
-
Pháp lý: Sở hữu lâu dài hoặc 50 năm.
-
-
Tại Phân khu Mũi Danh Vọng:
-
Số lượng dự kiến: khoảng 1000 căn.
-
Vị trí: Nằm trong khu bán đảo độc đáo, giáp biển hồ nước mặn, với một số căn sở hữu tầm nhìn hướng biển và kề cận bến du thuyền đẳng cấp.
-
Thông tin về diện tích đất, thiết kế và pháp lý đang được cập nhật.
-
-
Tại Phân khu Đảo Mặt Trời:
-
Số lượng dự kiến: khoảng 1800 căn.
-
Vị trí: Tọa lạc trong khu bán đảo, vừa giáp biển hồ nước mặn, vừa tiếp giáp với mặt biển tự nhiên.
-
Thông tin về diện tích đất, thiết kế và pháp lý đang được cập nhật.
-
Phối cảnh đơn lập Vinhome Cần Giờ
Giá Bán Biệt Thự Đơn Lập Vinhomes Cần Giờ Là Bao Nhiêu?
Tại thời điểm hiện tại, chủ đầu tư vẫn chưa công bố chính thức mức giá dành cho dòng sản phẩm biệt thự đơn lập tại Vinhomes Cần Giờ. Tuy nhiên, dựa trên quy mô, vị thế độc tôn và quy hoạch bài bản của dự án, các chuyên gia dự báo mức giá khởi điểm cho mỗi căn biệt thự đơn lập có thể từ 50 tỷ đồng.
Chúng tôi sẽ cập nhật ngay lập tức và chính xác nhất ngay sau khi bảng hàng chính thức được phát hành, nhằm giúp quý nhà đầu tư dễ dàng theo dõi và đưa ra lựa chọn phù hợp.
Chi Tiết Mặt Bằng và Ngôn Ngữ Thiết Kế Của Biệt Thự Đơn Lập
Trong toàn bộ dự án, biệt thự đơn lập được định vị là dòng sản phẩm cao cấp và sang trọng nhất, được kiến tạo dành riêng cho giới tinh hoa, những chủ nhân ưu tiên một không gian sống hoàn toàn riêng tư, tiện nghi đẳng cấp và mang đậm phong cách nghỉ dưỡng giữa lòng đô thị.
Với số lượng giới hạn, chỉ chiếm khoảng 4.300 căn trong tổng số hơn 48.000 sản phẩm thấp tầng toàn khu, dòng biệt thự đơn lập được quy hoạch tại những tọa độ đẹp nhất: phía trước là mặt hồ nước mặn khoáng đạt, phía sau là không gian công viên xanh tươi.
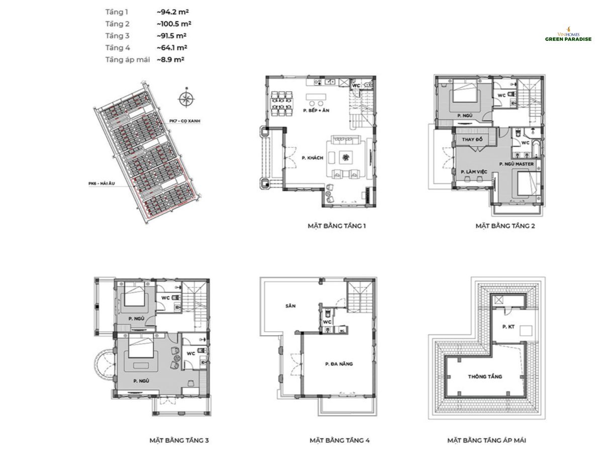
Diện tích đất của mỗi căn dự kiến dao động trong khoảng từ 200m² đến 300m², với quy cách xây dựng tối đa là 4,5 tầng. Lối thiết kế không gian mở được ưu tiên hàng đầu, giúp tối ưu hóa sự thông thoáng, tăng cường kết nối hài hòa với môi trường thiên nhiên xung quanh.
Kiến trúc của các căn biệt thự đơn lập sẽ rất đa dạng, thay đổi theo phong cách chủ đạo của từng phân khu, có thể là phong cách Đông Dương (Indochine) hoài cổ, Địa Trung Hải phóng khoáng, Manhattan hiện đại, Tân cổ điển châu Âu sang trọng hoặc Hiện đại tối giản tinh tế. Dù mang ngôn ngữ thiết kế nào, điểm chung của tất cả vẫn là hình khối kiến trúc vững chãi, cách phối màu trung tính đầy sang trọng và những đường nét mặt tiền thanh lịch, đáp ứng hoàn hảo thị hiếu thẩm mỹ cao cấp.
Về công năng sử dụng, không gian bên trong được tổ chức một cách linh hoạt và hiệu quả trên từng tầng:
-
Tầng trệt: Được thiết kế như một không gian sinh hoạt chung sang trọng và kết nối, bố trí liền mạch giữa phòng khách, phòng ăn và khu vực bếp. Mỗi căn biệt thự đều sở hữu từ 3 đến 4 mặt thoáng sân vườn, tạo ra một không gian sống vừa riêng tư tuyệt đối vừa giao hòa cùng thiên nhiên.
-
Tầng 2: Là không gian nghỉ ngơi chính, tập trung vào phòng ngủ master rộng rãi, được tích hợp thêm khu vực thay đồ và không gian làm việc. Ban công lớn giúp đón trọn vẹn gió biển trong lành và ánh sáng tự nhiên.
-
Tầng 3: Có thể được bố trí linh hoạt thành các phòng ngủ phụ, phòng học cho con trẻ, phòng sinh hoạt chung của gia đình hoặc một thư viện yên tĩnh, tùy theo nhu cầu sử dụng của gia chủ.
-
Tầng mái (tum): Là một không gian mở đầy tiềm năng, phù hợp để gia chủ kiến tạo một khu vườn trên cao, khu vực BBQ ngoài trời, hoặc một góc thiền định, thư giãn riêng tư.
Minh họa thiết kế đơn lập Vin Cần Giờ
3 Lý Do Nên Sở Hữu Biệt Thự Đơn Lập Vinhomes Cần Giờ Ngay Giai Đoạn Đầu
Biệt thự đơn lập tại Vinhomes Cần Giờ không chỉ đơn thuần là một sản phẩm nhà ở, mà còn là một tài sản sở hữu lâu dài, hội tụ trọn vẹn các giá trị để an cư, nghỉ dưỡng và khai thác sinh lời bền vững. Với đặc tính khan hiếm, vị trí chiến lược và thiết kế đẳng cấp, dòng sản phẩm này đang là tâm điểm chú ý của giới trung lưu và thượng lưu trong giai đoạn đầu của chu kỳ phát triển đô thị biển Cần Giờ.
1. Không Gian Sống Chuẩn Sinh Thái, Đẳng Cấp Giữa Lòng Đại Đô Thị Khác biệt hoàn toàn với các khu dân cư truyền thống, biệt thự đơn lập Vinhomes Green Paradise được phát triển dựa trên triết lý “resort living” – mang đến một cuộc sống chan hòa với thiên nhiên nhưng vẫn được tận hưởng những tiện nghi đẳng cấp của một khách sạn 5 sao. Mỗi căn biệt thự được bao bọc bởi 3 đến 4 mặt thoáng sân vườn riêng, sở hữu tầm nhìn hướng ra biển hoặc hồ nước mặn, tạo nên một cảm giác yên tĩnh, thanh lọc và gần gũi với thiên nhiên. Cảnh quan nội khu được quy hoạch đồng bộ với các công viên sinh thái, quảng trường biển, hồ cảnh quan, bến du thuyền, cùng hệ tiện ích khép kín từ Vincom, Vinmec… Với mật độ xây dựng thấp, các chủ nhân tương lai vừa có thể tận hưởng một không gian sống an yên, vừa sở hữu những đặc quyền về sự riêng tư và đẳng cấp, một điều hiếm có tại một đô thị 10 triệu dân như TP.HCM.
2. Sản Phẩm Khan Hiếm: Giá Trị Tích Lũy Vững Bền Theo Thời Gian Biệt thự đơn lập là dòng sản phẩm có tỷ lệ thấp nhất trong toàn bộ dự án, chỉ khoảng 4.300 căn trên tổng số hơn 48.000 sản phẩm thấp tầng, và được phân bổ tại các vị trí đắc địa nhất như Vịnh Tiên, Vịnh Ngọc, Mũi Danh Vọng, và Đảo Mặt Trời. Trong bối cảnh TP.HCM gần như đã cạn kiệt quỹ đất ven biển mới, việc sở hữu một căn biệt thự đơn lập vừa có tính riêng tư cao, vừa tiếp giáp mặt nước mang một ý nghĩa tích sản lâu dài, tương tự như các khu biệt thự biển danh giá tại Đà Nẵng hay Nha Trang, nhưng lại nằm ngay trong địa giới của TP.HCM. Khả năng tăng giá của dòng sản phẩm hữu hạn này đến từ chính quy luật của sự khan hiếm: nguồn cung không thể tái tạo, trong khi nhu cầu sở hữu một “ngôi nhà thứ hai” (second home) ven đô ngày càng tăng mạnh.
3. Tiềm Năng Khai Thác Thương Mại Linh Hoạt Biệt thự đơn lập không chỉ là một nơi để ở, mà còn là một tài sản có khả năng vận hành thương mại cực kỳ hiệu quả. Với lợi thế về diện tích lớn, công năng linh hoạt, mặt tiền rộng và thiết kế hoàn toàn độc lập, sản phẩm này hoàn toàn phù hợp để triển khai các mô hình kinh doanh đa dạng như:
-
Kinh doanh villa nghỉ dưỡng cho thuê theo ngày hoặc theo tuần trên các nền tảng đặt phòng trực tuyến như Airbnb hay Luxstay.
-
Sử dụng làm “second home” cá nhân kết hợp với việc khai thác cho thuê theo mùa du lịch.
-
Phát triển mô hình kinh doanh lưu trú cao cấp, nhắm đến đối tượng khách du lịch sinh thái, khách đoàn doanh nghiệp, khách tham dự hội nghị khi Cần Giờ hình thành một hệ sinh thái du lịch biển hoàn chỉnh theo đúng quy hoạch.
Khác với các kênh đầu tư chỉ phụ thuộc vào lãi vốn, biệt thự đơn lập có khả năng sinh lời theo cả hai hướng: vừa tăng giá trị tài sản theo thời gian, vừa tạo ra dòng tiền đều đặn từ việc khai thác vận hành. Đây là mô hình đầu tư kép ngày càng được giới đầu tư chuyên nghiệp ưu tiên, đặc biệt khi dự án sở hữu một hệ tiện ích đủ sức hấp dẫn để giữ chân du khách lưu trú dài ngày.
Ai Là Người Phù Hợp Để Sở Hữu Biệt Thự Đơn Lập Vin Cần Giờ?
Dòng sản phẩm đơn lập tại Vinhomes Green Paradise là một lựa chọn lý tưởng dành cho các nhóm khách hàng sau:
-
Các gia đình thuộc giới trung lưu và thượng lưu đang tìm kiếm một không gian sống nghỉ dưỡng, ưu tiên sự yên tĩnh, biệt lập, gần gũi thiên nhiên nhưng vẫn đảm bảo kết nối thuận tiện đến trung tâm TP.HCM, rất thích hợp để làm một “second home” ven đô.
-
Các nhà đầu tư dài hạn mong muốn tích lũy những tài sản khan hiếm, ưu tiên các sản phẩm có giá trị bền vững, pháp lý rõ ràng, tọa lạc tại vị trí chiến lược và sở hữu tiềm năng tăng giá vượt trội theo chu kỳ phát triển của hạ tầng ven biển.
-
Các nhà đầu tư chuyên khai thác dịch vụ lưu trú cao cấp, phù hợp để vận hành các mô hình villa cho thuê, homestay hoặc serviced villa, nhắm đến tệp khách du lịch sinh thái và nghỉ dưỡng biển cao cấp tại Cần Giờ trong tương lai.
Tóm lại, biệt thự đơn lập Vinhomes Cần Giờ không chỉ là một không gian sống đẳng cấp, mà còn là một tài sản tích lũy có giá trị bền vững theo dòng chảy của thời gian. Với vị thế ven biển duy nhất tại TP.HCM, thiết kế biệt lập giữa một hệ sinh thái tự nhiên trong lành, cùng tiềm năng tăng giá mạnh mẽ nhờ sự cộng hưởng từ hạ tầng đang được triển khai, đây là một lựa chọn lý tưởng cho cả nhu cầu an cư lẫn đầu tư chiến lược. Trong bối cảnh thị trường bất động sản đang tái cấu trúc theo hướng chọn lọc và chất lượng, việc sở hữu một căn biệt thự đơn lập tại dự án chính là một bước đi chiến lược để đón đầu tương lai.
Nếu quý khách có nhu cầu đầu tư vào dòng sản phẩm biệt thự đơn lập tại dự án, hãy nhanh tay liên hệ ngay với chúng tôi qua số hotline: 0375 554 555 để được tư vấn chi tiết và hỗ trợ đặt cọc giữ chỗ những căn có vị trí đẹp nhất!
